135 0625 7255
电子厂无尘车间净化工程设计方案:EPURZAN荔枝视频APP下载污污黄色
发布者:苏州荔枝视频APP下载污污黄色浏览次数:发布时间:2022-07-05
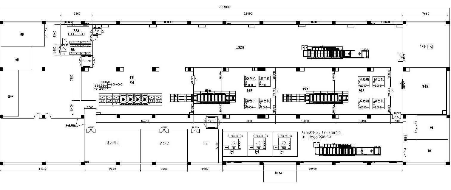
 电子厂无尘车间净化工程设计方案--荔枝视频APP下载污污黄色净化根据甲方生产工艺要求,洁净室系统技术指标按美国联邦209E有关规定执行。洁净区总面积4300m2,其中百级洁净区面积2,040m2,千级洁净区面积89Om2,万级洁净区面积1470m2。如图:电子厂房净化工程设计平面图。



                                                                                                    
净化工程设计平面图  I  EPURZAN荔枝视频APP下载污污黄色



  位于浙江杭州某电子厂,本工程为合资兴建高科技电子厂。该建筑两层,局部三层,建筑面积14,700m2。设备楼与生产厂房相连,设备楼一层有发电机房、变压器房。高低压配电房,层高6.5m;二层为制冷机房,层高5.5m。厂房一层有洁净车间、更衣室、小清洗房、大堂、鞋柜房。仓库、空调机房、工艺用纯水房等,层高6.5m,其中洁净区面积2,760m2;二层有洁净车间、清洗房、鞋柜房、办公室、空调机房等,层高6.5m,其中洁净区面积1,640m2。洁净车间内主要有磁头装配生产线、清洗生产线、检查测试生产线等。局部三层为空气压缩机房、仓库等。

洁净室的新风量和送风量

风量综合考虑人员卫生所需风量、生产设备排风量、维持洁净室正压所需风量,经计算得出。

100级洁净室空调送风量由冷负荷和焓差经计算得出。

1000级以下洁净室的空调送风量除由冷负荷和焓差的计算值外,还需考虑洁净换气次数,取二者的较大值。之所以与100级洁净室不同,是由于空调方式不同。

100级主洁净室(包括清洗房)的空调方式

采用PAHU+AHU+FFU的空调方式。




                                                                                 
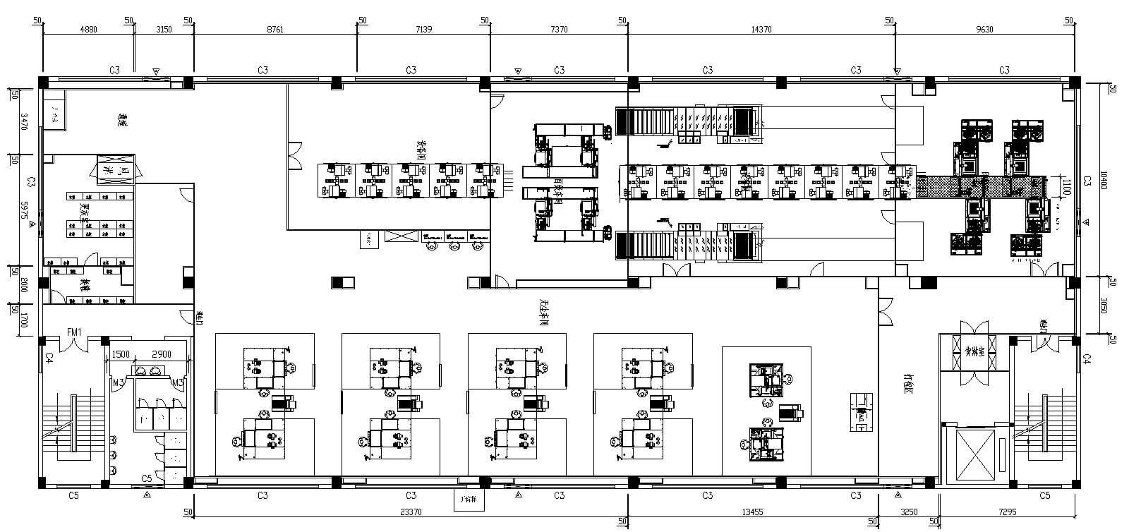
净化工程设计平面图  I  EPURZAN荔枝视频APP下载污污黄色  
                                            

由于该洁净室生产高科技电子产品,产量大,产品贵重,因此要求全年任何时间其环境参数均满足生产要求。这样在净化空调设计时,不能按照空调设计手册中历年平均不保证时间所确定的室外设计参数,而是采用极端气候参数进行计算。

此类洁净室由于洁净级别、室内生产设备等原因,单位面积指标可达1200w/m2, 新风机组的空气过滤要引起足够的重视,以延长末端高效过滤器的寿命。新风机组的变频对控制室内静压的效果比较理想,同时又可节能,宜推广使用。

由于此类洁净室所需辅助厂房设施较多,因此吊顶内各种管道很多,如空调风管、电缆桥架、电气线槽、压缩空气管道、真空管道、纯水管道、消防管道、工艺冷却水管道、氮气管道等,所以要求各专业在设计阶段就要紧密配合。

  其中:PAHU为新风处理机组( Primary Air Handing Unit) ;
     AHU为空气处理机组(Air Handling unit);
     FFU为带风机的高效过滤器(Fan Filter Unit,eff.99.99%MPPS)。
系统中加PAHU,洁净室正压由PAHU风机马达变频控制,同时使室外环境的变化对洁净室的影响减小,对洁净室的温、湿度控制有利。一楼主洁净室共设PAHU 3台,新风处理总量为30,000CMH,新风处理到低于室内空气含湿量;AHU 5台,空气处理总量为394,000CMH。
二楼主洁净室共设PAHU3台,新风处理总量为39,500CMH;AHU 10台,空气处理总量为616,000CMH。
每个车间均为独立空调系统。净化空调机组AHU将从室内抽回的回风与新风机组PAHU处理过的新风混合,经过滤、冷却、加湿等处理后,送至洁净室天花板上的空间,再与由回风技术夹墙回到天花板上的室内空气混合经 FFU送到室内。生产设备的局部排风由排风机排至室外。
洁净室气流组织为上送下回单向流,天花上基本满布FFU送风,地板采用开孔率为18%的架空地板,部分地板有调节阀,以调节气流的流型。
1000级更衣室和小清洗房这些辅助洁净车间采用AHU加末端高效过滤器的空调方式。在空调送风量由冷负荷和焓差的计算值小于由换气次数的计算值很多时,采用二次回风,以便洁净室的温、湿度控制,同时减小空调机组的初投资。

主要设计参数

根据甲方生产工艺的要求及FS209E的相关规定,并参考《洁净厂房设计规范》GBJ73-84。

 洁净空调换气次数

百级:换气次数为400次/小时(断面风速0.36m/s)

千级:换气次数为80次/小时

万级:换气次数为40次/小时

十万级:换气次数为25次/小时

冷源设置和空调水系统

本工程中空调面积3,500m2,夏季总计算冷负荷4,560kw。洁净区冷负荷4,040kw,非洁净区冷负荷520kw。非洁净区包括办公室、鞋柜房、大堂、仓库等。平均空调面积指标669W/m2。设备楼二楼制冷机房设置 4台法国 CARRIER 373RT螺杆式冷水机组,型号为30HXC375,冷媒为R134a,冷冻水供回水温度7℃/12℃,冷冻水泵和冷却水泵各5台,均为4用1备,并联运行。冷冻水泵型号为SPP150/40,每台流量72L/S;冷却水泵型号为SPP150/32,每台流量87L/S。设备楼顶设菱和FT400冷却水塔4台,并联运行

       空调水系统为一次泵变水量水系统,根据系统水量的变化情况控制泵的运行台数,实现系统经济运行,同时供、回水主管之间设有压差旁通控制,保证供、回水压差的恒定及有足够的水流过冷水机组的蒸发器。

  冷冻水系统主要分两路,分供一层和二层。水系统采用异程式,膨胀水箱设在局部三层的屋面。冷却水按常规设置。

自动控制系统

  本工程新风机组风机马达采用变频自动控制,在保证卫生的前提下,根据洁净室静压调节变频器,使洁净室的静压不随生产设备的排风量的变化而变化,同时起到节能作用。

  由于本工程对温、湿度要求较高,夏季降温、除湿均由表冷器实现,故采用温、湿度PID输出较大值的控制方法。AHU及PAHU的冷冻水量采用等百分比二通电动调节间进行控制。主洁净室每台AHU负责的区域较大,所以每台AHU分别配 2-3个温、湿度传感器取平均值进行温、湿度的自动控制。空调系统的除湿主要由PAHU来完成。

  冷冻水系统方面采用负荷控制的方法确定冷水机组及相应的水泵、水塔的开启台数。根据设定供、回水压差自动控制供、回水主管之间压差旁通阀。

  AHU回风管内设烟感探测器,在有火灾的情况下烟感探测器将信号传给DDC,DDC会发出指令停AHU的风机马达,以防火灾的蔓延。另一方面,消防系统给一对干节点串联到AHU配电箱的控制电路中,在该区有火灾信号时,该节点自动断开,AHU的风机将停止运行。这样,在火灾情况停风机这方面有双重保险。

工程调试与测试

  首先空调机组开机24小时后安装高效过滤器,测试空调机组的送风量,并调整到设计值。然后测量各高效送风口的风速并进行调整,需反复调整,直至所有风口的风速调至要求的范围内。之后,进行高效过滤器的检漏工作,检漏不合格的高效过滤器换下,重新安装后需再测风速、检漏,直至合格为止。上述程序完成之后,测量洁净度、温度、湿度、正压、照度、地板的导电率、噪声。测试结果符合美国NEBB测试标准要求。
洁净空冷负荷

  夏季冷负荷包括围护结构负荷、人员负荷、照明负荷、生产设备负荷、空调机组内风机负荷、新风负荷。其中,生产设备一项由甲方提供设备功率和设备的排气量。经计算,主洁净室面积指标1,170w/m2,清洗房面积指标1,220W/m2。

 空气处理

  主洁净室的新风经PAHU的初、中效过滤后,再经冷却盘管处理后送给AHU。冷却盘管的冷却功能在新风需除湿时由中央冷源提供冷冻水实现。

  新、回混合风经AHU的过滤、冷却、加热、加湿处理

  a.冷却:由中央冷源提供冷冻水流经AHU盘管实现冷却功能;

  b.过滤:空气经置于AHU内的初、中效过滤器的过滤,再经末端高效过滤器送至室内。

  c.加热:由装在送风管中的电热器实现加热功能,电热器在此系统中只起辅助作用。

  d.加湿:干蒸汽加湿器通过安装于送风管中的蒸汽喷管向空气中加湿。加湿器为电热式,其供水为RO水。

参考文献

1.美国联邦标准FS-209E

2.《洁净厂房设计规范》GBJ73-84

友情链接

友链合作
网站地图